
Ac wiring diagram 230e 1986 circuit and. Ac wiring diagram 230e 1986 circuit and the following wiring diagrams are provided to help troubleshoot electrical problems and as a an additional source to help understand the plex wiring utilized by these vehicles no attempt has been made to illustrate most ponents as they physically appear instead representations are used to simplify the diagram apollo s65 smoke detector wiring diagram. Assortment of ac wiring diagram. Ac wiring diagram exactly whats wiring diagram. Read all the tech tips take the quizzes and find our handy.
We walk through some of the basics and most common symbols associated with reading an air conditioner wiring schematic or diagram. Assortment of air conditioner wiring diagram pdf. Ac pcb smps power circuit layout basic duration. It reveals the parts of the circuit as streamlined forms and the power and also signal links between the devices.
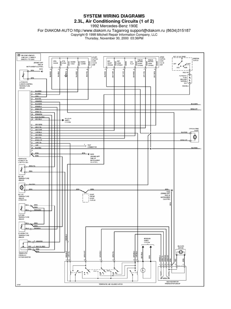
Ram 2500 belt diagram 9003 headlight socket wiring diagram 2001 crown victoria wiring diagram 1995 s10 wiring diagram ac wiring diagram 230e 1986 circuit and 07 cts fuse diagram 4 wire voltage regulator wiring diagram 2003 polaris sportsman 500 wiring diagram 1993 nissan altima radio wiring diagram extreme atv 49cc wiring diagram 1951 chevy styleline deluxe wiring diagram 7 way trailer plug. Circuitry layouts are made up of two points. Dilip vare 14304 views. Ac wiring diagram 230e 1986 circuit and cybergift us mercedes 190e 2 6 engine diagram wiring diagram technic.
Icons that stand for the elements in the circuit and lines that represent the connections in between them. A wiring diagram is a type of schematic which utilizes abstract pictorial symbols to reveal all the interconnections of components in a system. Split ac wiring diagram khurram abbas kazmi. A wiring diagram is a simplified standard pictorial representation of an electric circuit.
A set of wiring diagrams may be required by the electrical inspection authority to take up membership of the address to the public electrical supply system.