
Jlg wiring schematic. And an array of complementary accessories that increase the versatility and efficiency of these products. Service maintenance manual models 1930es 2030es 2630es 2646es 3246es 3121166 november 27 2013. The companys diverse product portfolio includes leading brands such as jlg aerial work platforms. I am in the process of replace the old and unprofessional wiring that some jack leg electrician worked on.
I am working on a 1992 grove man lift amz bxt 40. It shows the components of the circuit as simplified shapes and also the power as well as signal links between the gadgets. Is the worlds leading designer manufacturer and marketer of access equipment. The companys diverse product portfolio includes leading brands such as jlg aerial work platforms.
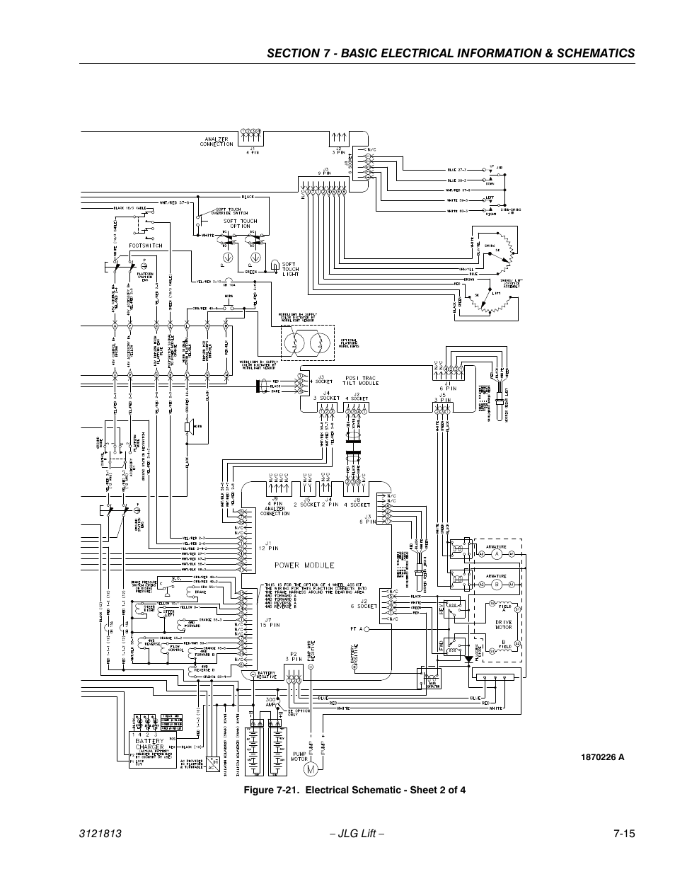
Introduction maintenance safety precautions 3121166 jlg lift. 7 3 electrical schematic proportional controls machines. Chassis wiring harness and connectors sheet 2 of 2 3121198 jlg lift. 1 jlg drive mcconnellsburg pa.
Models 1532e2 1932e2 2032e2 2632e2 2646e2 3246e2 3120856 september 24 2013. Variety of jlg scissor lift wiring diagram. Generator wiring schematic 1 of 2 7 14 jlg lift 3121298. Generator wiring schematic 1 of 2 section 7 basic electrical information schematics 1001110345d sheet 3 figure 7 30.
Dc circuit breaker 3. Jlg t350 service and maintenance manual. Generator wiring schematic 2 of 2. Jlg skytrak and lull telehandlers.
Revision log 3120856 a july 1998 original issue of manual edited to 0010549 revision 10. Ac circuit breaker 7. Box 5119 11 bolwarra road port macquarie nsw. And an array of complementary accessories that increase the versatility and efficiency of these products.
A wiring diagram is a streamlined standard photographic representation of an electrical circuit. Platform and ground control electrical schematic 2 of 2 3121298 jlg lift 7 13. Jlg skytrak and lull telehandlers. 3120824 corporate office jlg industries inc.
Battery charger schematic 3121198 jlg lift 3 93. Switch wiring low side. Carlos stevenson 80 suite 71 13092 310 campinas sp brazil 61 2 65 811111 61 2 65 813058 55 19 3295 1025 jlg. 17233 9533 usa 717 485 5161 717 485 6417 jlg worldwide locations jlg industries australia po.